El Castillo de Galve se abre camino como hospedería con siete alojamientos
La iniciativa, impulsada por Castilgalve S.L. y diseñada por el arquitecto José María Villanueva de Arq Socios S.L., tomó forma en febrero de 2020, según el "Proyecto Básico y de Actividad de Rehabilitación del Castillo de Galve de Sorbe en Guadalajara para la Implantación de una Hospedería Rural" (febrero de 2020). Tras un largo proceso administrativo, el plan acaba de entrar en una fase crucial el pasado 13 de mayo de 2025, cuando el Ayuntamiento de Galve de Sorbe anunció su exposición pública complementaria en el Diario Oficial de Castilla-La Mancha.
A partir de ahí, durante 20 días, la documentación detallada del proyecto está a disposición de los ciudadanos en el consistorio, abierto a observaciones y alegaciones. Este proceso cumple con las normativas de ordenación territorial y de suelo rústico de Castilla-La Mancha, buscando un equilibrio entre el desarrollo y la protección patrimonial.
Detalles de la Transformación
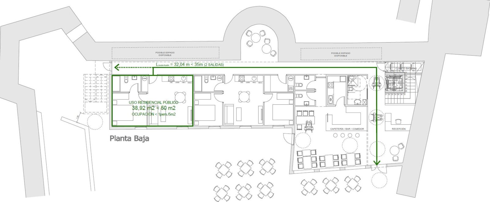
La futura hospedería ocupará un ala en forma de 'L' dentro del castillo, una estructura de 1.240 metros cuadrados. Esta sección, situada en la zona sur y próxima a la entrada principal, se distribuirá en dos plantas.
- En la baja, se ubicarán la recepción, una cafetería con comedor, aseos (incluido uno adaptado), lavandería y un espacio para gestión de residuos, además de dos apartamentos con uno y dos dormitorios dobles respectivamente.
- La planta superior albergará otros dos apartamentos similares, un estudio, una habitación adaptada y otra doble, sumando un total de siete unidades de alojamiento. Un ascensor comunicará ambos niveles. El acceso al complejo se realizará por la calle de la Iglesia Vieja o el Camino de la Dehesa, pasando por el antiguo cementerio. Para la comodidad de los visitantes, se habilitarán dos áreas de aparcamiento: una a mayor altitud para el público general y otra más cercana a la entrada para los huéspedes.
Espacio polivalente: Más allá de la hospedería
El proyecto del Castillo de Galve de Sorbe no se limita únicamente a la habilitación de una hospedería. Los planes también contemplan la asistencia puntual de visitantes externos y la creación de un espacio de terraza anexo al bar, lo que significaría un incremento significativo en la capacidad de ocupación del conjunto.

Las estimaciones de aforo, considerando esta polivalencia, se desglosan de la siguiente manera:
- Total hospedería + restaurante: 68 personas
- Terraza: 36 personas
- Total hospedería + restaurante (ocupación combinada): 104 personas
- Estimación de visitantes extra: 30 personas
- Total del conjunto del castillo: 134 personas
La seguridad de todos los ocupantes es una prioridad, y se ha verificado que el espacio exterior disponible es seguro para acoger este número de personas. Además, se ha comprobado que el ancho de la entrada al castillo es suficiente para garantizar la evacuación de todos los ocupantes en caso de necesidad.
Décadas de Lucha por el Patrimonio (Desde los años 70)
La historia reciente del Castillo de Galve de Sorbe ha estado marcada por el abandono. A pesar de algunas reformas parciales realizadas por un propietario en los años setenta, el deterioro fue constante. La situación llegó a un punto crítico que impulsó a la Asociación Castillo de Galve a la acción. Su incansable labor de concienciación y presión ha sido fundamental para su conservación, llegando a lograr una sanción de 78.000 euros al propietario por negligencia.
Desde 2007, con un plan de consolidación, y hasta 2019, con la limpieza de escombros, se han dado pasos para frenar su ruina. La asociación, firme en su defensa del patrimonio, reclama que, como Bien de Interés Cultural, el castillo se abra al público de forma gratuita cuatro días al mes, en cumplimiento de la ley. También han solicitado dos visitas anuales para supervisar el avance de las obras, aunque esta petición aún no ha obtenido respuesta.
Larga travesía por la restauración
El proyecto de rehabilitación del Castillo de Galve de Sorbe tiene sus raíces en una serie de esfuerzos por salvaguardar este Bien de Interés Cultural. Las actuaciones iniciales en el castillo se remontan a 2007 con el "Proyecto básico de consolidación del Castillo de Galve de Sorbe", firmado por D. Luis Barrio Franquez.
En enero de 2009, la empresa Grupo Arqueox, Arqueología y Patrimonio S.L., presentó un "Informe Arqueológico" que recogía los resultados de una prospección superficial y un estudio de los paramentos exteriores. Este trabajo se complementó en enero de 2012 con un nuevo informe detallando los hallazgos de la lectura de los paramentos interiores del castillo. A partir de entonces, se sucedieron una serie de requerimientos de documentación por parte de la Consejería de Cultura y las subsiguientes entregas por parte de la empresa, proceso que se extendió hasta enero de 2013.

Posteriormente, en abril de 2016, Castilgalve S.L. promovió el "Proyecto de Restauración y Consolidación de Castillo de Galve de Sorbe", también firmado por Luis Barrio Franqueza. Este proyecto tenía como objetivo principal la "consolidación general de los paramentos de cerramiento y su restauración, levantamiento de las murallas para completar el cierre a su estado original, al fin de conservar el castillo". El documento señalaba que aún quedaba pendiente la consolidación de la torre del homenaje, las coronaciones de los muros perimetrales y la cubrición de los compartimentos interiores, los cuales se encontraban "muy dañados". Las tareas contempladas en ese momento incluían una "limpieza de las dependencias interiores, la consolidación y reconstrucción de los elementos constructivos; tanto los muros de cerramiento como las cubiertas".
Un futuro de oportunidades
Las obras, que se prevé duren 18 meses, prometen insuflar nueva vida al Castillo de Galve de Sorbe. Más allá de su valor histórico y cultural, su transformación en hospedería se perfila como un motor de desarrollo para la localidad, atrayendo turismo y generando actividad económica en un entorno rural que ansía oportunidades.
